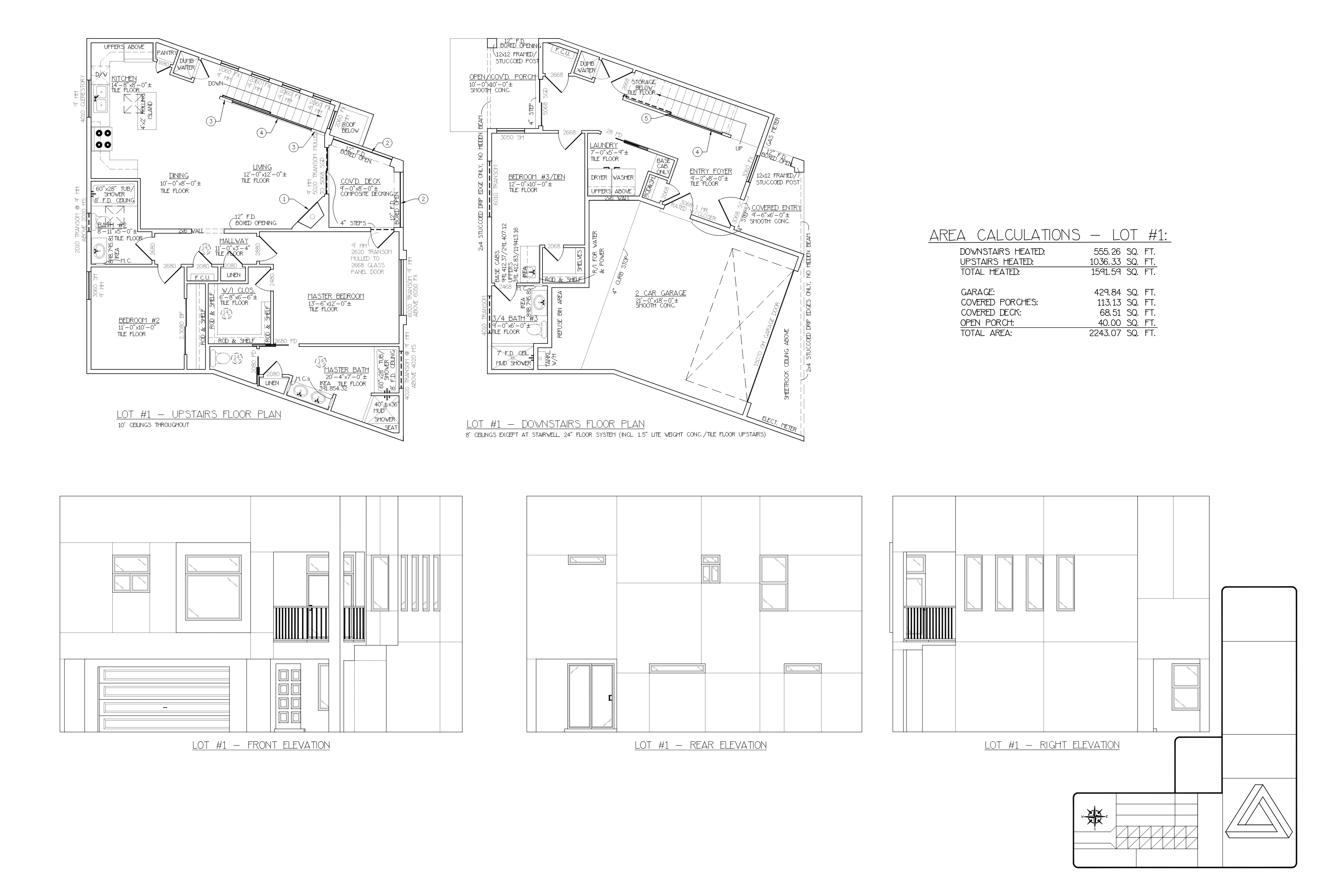
4231 Vida Verde, Albuquerque, NM (La Mirada Townhomes – Lot 1)
3 bedrooms
2 bathrooms
1,591 sqft
Townhouse
Property Type
Built in 2025
Year Built
2 parking space(s)
Garage
26,136 sqft
Lot Area
$314
Price per sqft
$No HOA fee data
HOA fee
-
3 Bedrooms | 2 Bathrooms
-
2-Car Garage
-
Modern Contemporary Architecture
-
Custom Finish Options for Early Buyers
-
Prime NE Heights Location
4231 Vida Verde, Albuquerque, NM (La Mirada Townhomes – Lot 1)
Features
Air conditioning
Natural gas
2 parking spaces
Kitchen open to family room, Kitchen island, Sliding doors, Disposal, Pantry
Microwave, Refrigerator, Dishwasher, Stove
Bedroom(s) Down, Granite, High Ceilings
Dedicated workspace
2 levels/stories
Garden, Mountain, Desert
Free parking, Wheelchair accessible



































